
$2,450/月起
王一凡
2人想租
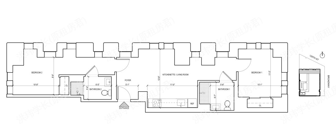
洪玮学长 | 全球转租求租平台「600 W 125th St (Columbia Housing)」https://www.54zfj.cn/us/new-york/S47676
浏览次数:87
2人想租
学校公寓
水电费网络全包! 紧邻麦当劳,步行2分钟到星巴克/便利店,15分钟到Trader Joe's 楼下就是地铁1号线 30分钟左右可到midtown/downtown大多数办公区域 Full-size bed/ private bathroom/ 非常齐全的厨房用具和调料组合/ 全新健身房 24/7 doorman 紧邻哥大商学院 步行15分钟到哥大主校区 街区安全有保障 室友是非常nice的哥大女生 优先女生
暑期实习
有电梯 有空调 有前台 有健身房 有落地窗 有抽油烟机
【温馨提示⚠️】房屋内部构造和配套设施等信息均由用户自行提供!
$2,450/月起