





£400/周起£450/周起
_Young
4人想租
洪玮学长 | 全球转租求租平台「Lillie Square」https://www.54zfj.cn/uk/london/S41839
浏览次数:146
4人想租
社会公寓
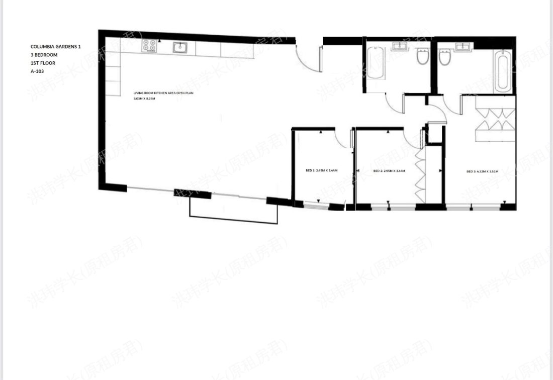
位于西伦敦Zone1大名鼎鼎的“伯爵府”的奢华愉隔壁就是英超豪门切尔西的主场距离West Brompton Station步行只要5分钟〔伦敦一区的繁华便利简直触手可及 空调/地暖/24小时礼宾服务/健身房/游泳池/SPA/会客厅/私人电影院/餐厅/咖啡吧台/儿童活动室 客厅布置简约大气上1中式桌椅颇有亲切感开放式厨房同样素雅 豆浴室色调洋溢着温馨、卧室窗外绿意盎然,给你满满的松弛感了上门口处还有大大的储物空间,主打就是一个实用 Lillie Square 是伦敦少有配套私人俱乐部的luxury项目,住户凭着 Lillie Pass 可以享受会所所有五星级服务与设施 转租的房间为 BED2(可以看下平面图
专业需求
有电梯 有空调 有阳台 有浴缸 有前台 带停车位 有健身房 有独立洗衣机 有落地窗 有抽油烟机 有游泳池 宠物友好
【温馨提示⚠️】房屋内部构造和配套设施等信息均由用户自行提供!
£400/周起
已省 £50 /周