


£287/周起£293/周起
鸽子咕
8人想租
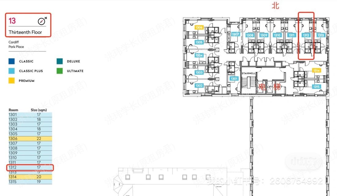
洪玮学长 | 全球转租求租平台「Vita student Cardiff」https://www.54zfj.cn/uk/cardiff/S30304
浏览次数:291
8人想租
学生公寓
Vita Student Cardiff是2022年9月新公寓。 Vita Student Cardiff是一栋风格独特的国际化学生公寓,拥有设备齐全的健身房、私人餐厅和学习室,您可以轻松在这里体验丰富的活动。公寓拥有24小时安全监控系统,可有效保证您的安全。工作日早餐,水费,电费等账单都包含在租金内。公寓还提供工作日免费早餐,每月两次的清洁服务
个人原因。
有免费清洁 有前台 有健身房 有独立洗衣机 有早餐 有空调 有阳台 有电梯 带停车位 有落地窗 有抽油烟机
【温馨提示⚠️】房屋内部构造和配套设施等信息均由用户自行提供!
£287/周起
已省 £6 /周